Сохранить структуру


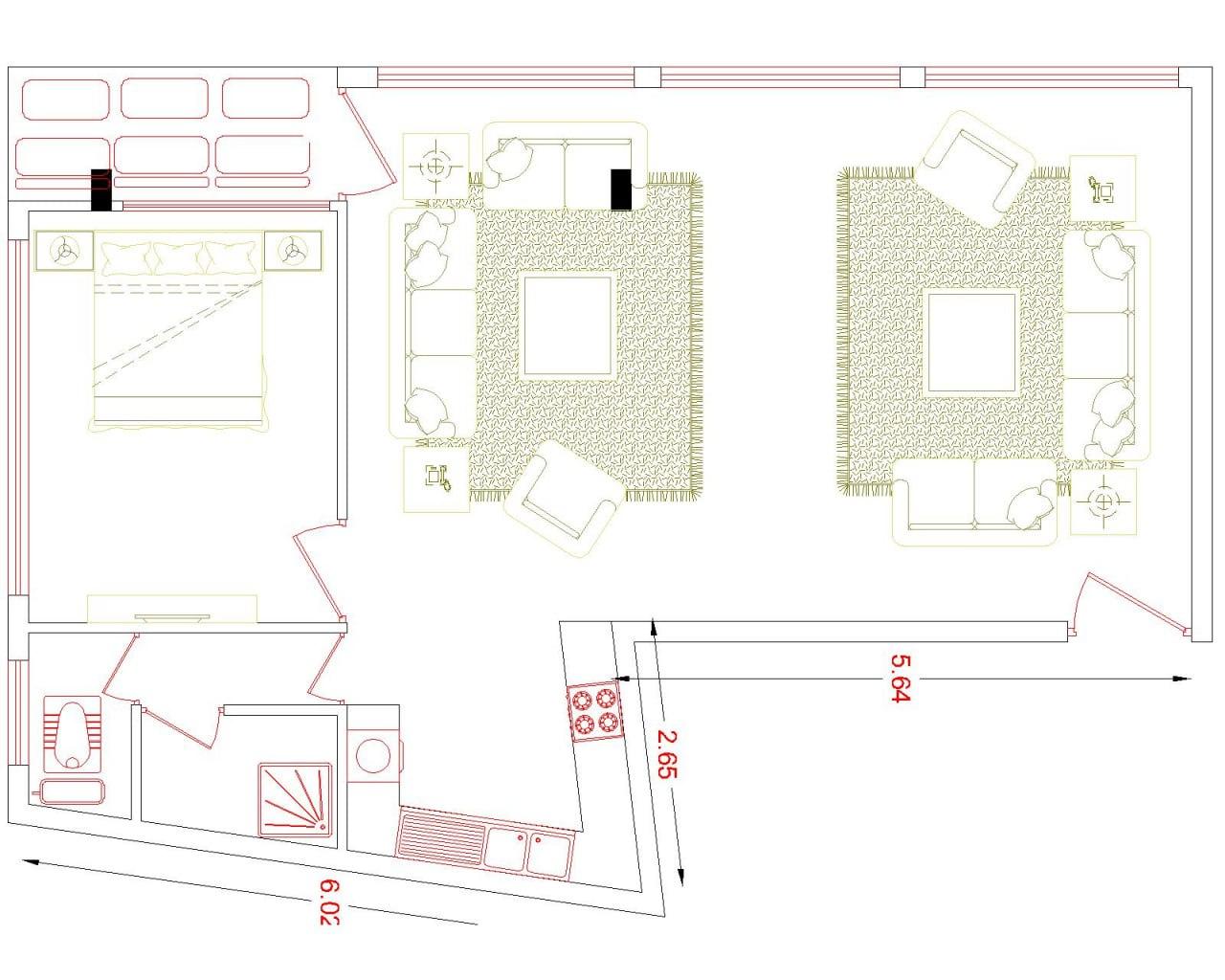
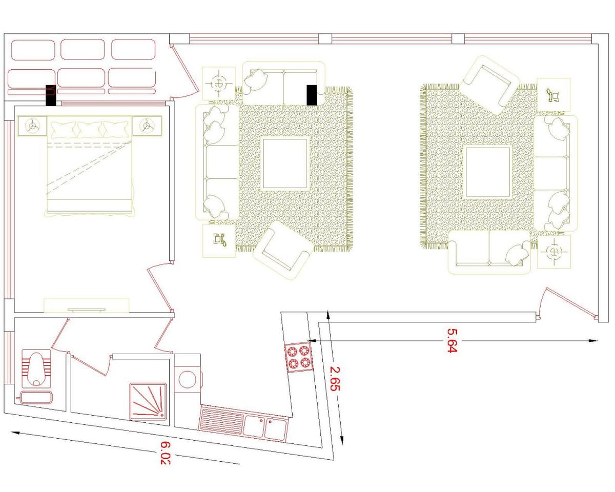
The photo captures a vibrant bohemian oasis, bathed in the soft light of midday during a cheerful spring day. The scene unfolds across a spacious layout, where the living room, adorned with a plush white carpet, welcomes with two inviting white sofas. The walls, painted in a light, airy hue, create a serene backdrop. A richly patterned rug anchors the center of the room, complementing the soft furnishings. Adjacent to this tranquil space, another seating area features a similar carpet and comfortable armchairs. The entrance area is also carpeted, hinting at a warm welcome. Beyond the living space, a compact kitchen is envisioned with sleek white cabinets and tiled fixtures, providing a functional and stylish hub. The overall impression is one of understated elegance and relaxed comfort, with every element contributing to a sense of peaceful living.