

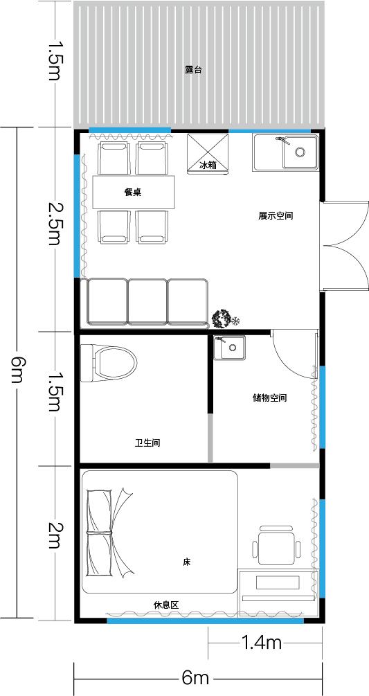
An incredibly lifelike, richly detailed, photorealistic overhead shot of a stylishly converted 3m x 5m x 2.8m shipping container, transformed into a functional yet artistic living space. The scene is illuminated by the warm, golden hues of a summer sunset, casting long shadows and creating a serene, escapist atmosphere. The interior is cleverly divided: a cozy sleeping area with a neatly made bed takes up one end, while a comfortable-looking sofa anchors the living space, suggesting a place for relaxation. Adjacent to this is a dedicated work and display area, complete with a desk and chair, hinting at the occupant's profession as a photographer. A small dining set offers a spot for meals, and a compact kitchen corner with a sink and refrigerator is neatly integrated. The bathroom is discreetly tucked away. A small balcony extends from the main living area, offering a view of a majestic mountain landscape, perfectly embodying the "mountain escape" theme. The overall impression is one of efficient, modern design, tailored for a creative individual with a passion for rock music, as indicated by hidden details within the styling. Captured with a wide-angle lens, emphasizing the surprisingly spacious feel and the clever utilization of every inch of the container's footprint.